Освоен выпуск МОДУЛЬНЫХ КОМПРЕССОРНЫХ станций РЕМЕЗА (МКР)
Модульная компрессорная станция служит для производства и подготовки сжатого воздуха и систем газоразделения на основе 20-ти, 40-ка и высоких (НС) 40-ка футовых стандартных контейнеров.
Для изготовления используются только новые контейнеры.
Станция имеет неоспоримое преимущество перед стационарными компрессорными - размещается не как капитальное строение – а как мобильный модуль и не требует дополнительной сертификации, кроме уже имеющихся у неё сертификатов РосТехНадзора и ГОСТ-Р. МКР в отличие от стационарных компрессорных не требует дополнительного проектирования, фундамента, строительных работ, вспомогательных помещений, постоянного присутствия обслуживающего персонала и занимает гораздо меньше места.
В отличие от других производителей (ЗАО ЧКЗ (станции БКК), Борец (станции МКС, ВКУ КС) и др.) станции нашего производства комплектуются и компрессорами и оборудованием подготовки - производства РЕМЕЗА!
А это гарантирует Вам высокое качество, сжатые сроки сборки, унификацию систем управления и обслуживания, эргономичное размещение оборудования, подготовленного для МКР и традиционно НИЗКУЮ ЦЕНУ.
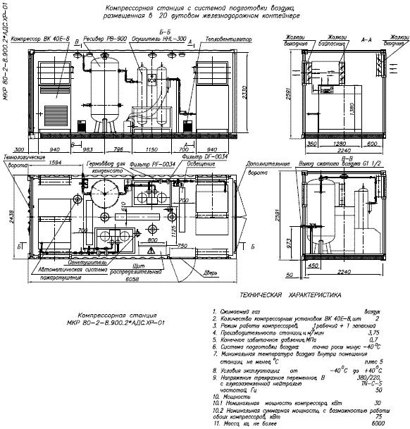
В одном модуле стандартной станции может разместиться компрессорное оборудование производительностью до 102 нм3/мин, давлением до 40 бар, с оборудованием любой степени подготовки сжатого воздуха, системы газоразделения, автоматических систем управления. При повышенных требованиях к качеству воздуха, тем более – при потребности в резервировании воздуха, частотном регулировании производительности - будут подобраны соответствующие модели компрессоров и/или дополнительное оборудование, размещаемое внутри станции (магистральные фильтры, рефрижераторные и адсорбционные осушители, воздухосборники, блоки разложения масла и влагоразделители, системы газоразделения, магистрали байпаса, дополнительные и основные системы автоматики станции, дожимные поршневые компрессоры (бустеры)).
Станция поставляется в варианте «под ключ», куда входят:
- теплоизоляция, автоматическая система поддержания температуры и жизнеобеспечения;
- входные и выходные патрубки с системой рекуперативного теплообмена компрессоров;
- освещение, системы автоматического и ручного пожаротушения;
- система обвязки силовых, общих и сигнальных электромагистралей с единым щитом;
- полная трубная обвязка с циклонными сепараторами и автоматическим конденсатоотводом;
- возможность мониторинга и управления станции дистанционно через порт RS485.
По каждой станции, либо по модели станции конкурентов возможно оптимальное составление размещаемого оборудования с индивидуальной подборкой комплексного решения по Вашим техническим, технологическим и климатическим условиям.
ПРИМЕР ПРОЕКТИРУЕМОЙ СТАНЦИИ МКР80-2-8.900.2*АДС.ХР-01: